Via Gian Giacomo Mora 20, Milano

Prezzo: 2.334 €
20251208144602-2 20251208144604-3 20251208144606-4 20251208144607-5 20251208144609-6 20251208144610-7 20251208144612-8 20251208144613-9 20251208144615-10 20251208144617-11 20251208144618-12 20251208144620-13 20251208144621-14 20251208144623-15 20251208144624-16 20251208144626-17 20251208144627-18 20251208144629-19 20251208144630-20 20251208144632-21 20251208144633-22 20251208144635-23 20251208144637-24 20251208144638-25 20251208144640-26 20251208144642-27 20251208144643-28 20251208144645-29 20251208144647-30 20251208144648-31 20251208144650-32 20251208144652-33 20251208144654-34 20251208144655-35 20251208144657-36 20251208144721-37
Tipologia Immobile: Studio/Ufficio
Metratura: 145 mq
Locali: 4
Classe energetica: C
Dati energetici: EPgl: 21,91 kWh/m²a

Via Gian Giacomo Mora 20, Milano

Prezzo: 2.334 €

DISPONIBILE MARZO 2026
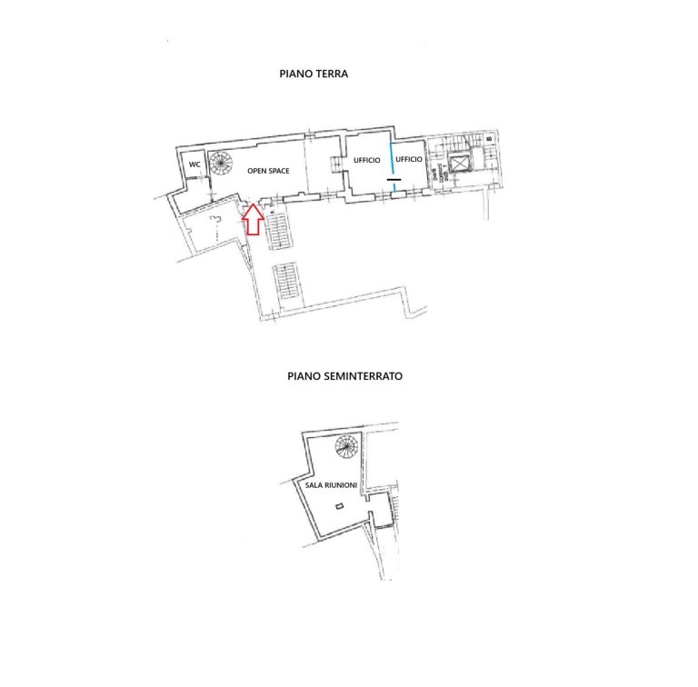
DE AMICIS – CESARE CORRENTI – VIA G.G. MORA. All’interno di una corte dell’800 in stabile del 2012 proponiamo in locazione sito al piano terra, ufficio di c.a. 145mq così composto: Ingresso, ampia zona open – space nella quale possono stare comodamente n° 10 postazioni di lavoro, n° 2 stanze, bagno con accesso disabili, bagno. Al piano seminterrato collegato da scala interna ampia sala riunioni.
Riscaldamento autonomo e aria condizionata centralizzata.
Le spese condominiali si attestano in c.a. Euro 4.200,00 annui salvo conguaglio comprensivi di quota condizionamento.
Servizio di portineria e video sorveglianza.
Zona ottimamente servita dai mezzi pubblici: MM4 fermata De Amicis; MM2 fermata S. Ambrogio; Tram: 2 e 14; Bus: 96 e 97

Richiedi informazioni